PINEDE, a tickling rationality for rent, BE






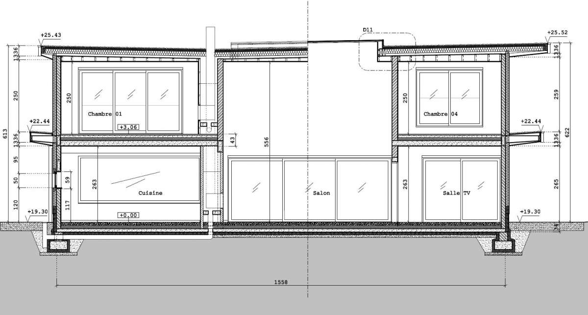
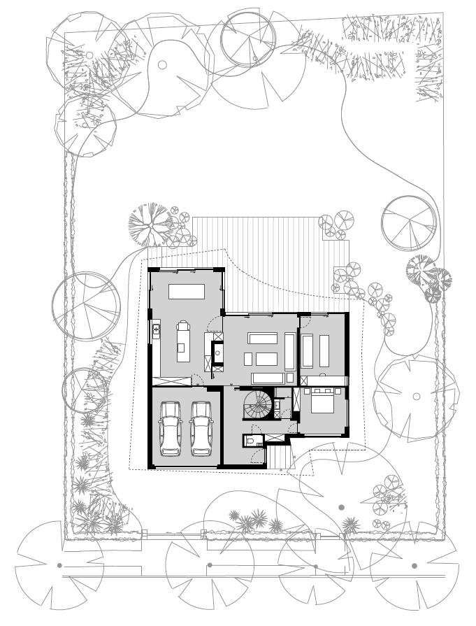
. Independently of the requirement for efficient construction and planning (and not without a little budget pressure) we decided to approach the problem artistically, bringing together fairly simple, clean features and forms. This double-height block is topped with a protective roof combining curves and straight lines. This dynamism contrasts with the single block and creates the aesthetic of two superimposed boxes that seem to float in the breeze.